築年数の経ったご実家の水回り。
「寒くて使いづらい」「古くなって不安」「親族が集まっても泊まれない」
そんなお悩みを抱えていませんか?
今回は、神石高原町草木の戸建て住宅にて、
浴室・洗面室・トイレの水回り改修と、
石油ボイラーからガス給湯暖房機への取替(燃料転換)を行った施工事例をご紹介します。
冬場の寒さや使い勝手の悪さに長年悩まれていた築100年超のご実家が、
親族みんなが安心して集まり、快適に過ごせる住まいへと生まれ変わりました。
補助金を活用しながら、
「これから先も大切に住み続けられる家」にするためのリフォーム事例です。
同じようなお悩みをお持ちの方は、ぜひ参考にしてください。
ー目 次ー
Toggle■お客様のお悩み
ご依頼者様は70代。
生まれ育ったご実家の老朽化が進み、特に浴室やトイレなどの水回りに大きな不便を感じておられました。
浴室は60年以上前のままで、
・脱衣スペースがない
・冬場はとても寒い
・使い勝手が悪い
といった点が長年の悩みでした。
また、法事や墓参りの際に親族が帰省しても、
「ゆっくり泊まってもらえないこと」が気がかりだったそうです。
親族みんなが安心して集まれる実家にしたいという想いから、今回の改修工事をご検討されました。
■工事受注のきっかけ・流れ
ご依頼者様は、もともと当社のガスをご利用いただいているお客様です。
当社がリフォーム工事も行っていることを知り、ご実家の改修についてご相談をいただきました。
遠方に住む兄弟・親族が集まる機会も多いため、
「誰が来ても快適に過ごせる住まいにしたい」というご希望がありました。
給湯設備は古い石油ボイラーを使用されており、
・追い炊きができない
・年数も経過している
という状況でした。
そこで、
▶追い炊きができる
▶浴室暖房も使える
ガス給湯暖房機をご提案。
あわせて燃料転換キャンペーンのご案内を行い、
新規ガス契約と給湯器の取替を決めていただきました。
■工事提案内容
・浴室(洗面一体)と外トイレのある空間を解体
・新たに脱衣室・洗面室・浴室・トイレを室内に配置
・システムバスを設置し、冬でも暖かい浴室へ
・石油ボイラーからガス給湯暖房機へ取替
・浄化槽の新設
・玄関まわりに土間コンクリートを打設し、段差の少ない動線に
これらの工事にあわせて、
□国の補助金(住宅省エネ2025キャンペーン)
□神石高原町の浄化槽補助金
が利用できることも説明させていただきました。
補助金は、条件確認から申請サポートまで対応しておりますので、お客様にご安心していただくことが出来ました。

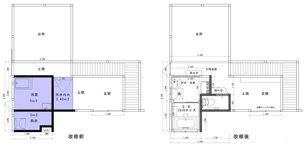
■施工前の様子
浴室は玄関を入った先の土間から直接入る間取りで、
脱衣スペースがなく不便な状態でした。
床と腰壁はタイル、壁天井はコンクリート造。
暖房設備はなく、すきま風も入り、
冬場は浴室内が非常に冷え込む環境でした。
給湯は石油ボイラーで、
追い炊き機能がなく、お湯を温め直すことができませんでした。




■施工中の様子
浴室・洗面室・トイレを配置するため、
約10㎡の既存浴室スペースを解体。
台所側の土間から脱衣室へ入る間取りに変更し、
トイレも玄関から使いやすい位置に新設しました。
工事期間中は、屋外に仮設風呂(約1畳)を設置。
お客様には仮設風呂をご利用いただきながら工事を進めました。


■施工後

断熱材入りで保温性が高く、冬でも暖かい浴室。
ヒートショック対策として浴室暖房機も設置しています。
システムバスにはLIXIL リデアを採用しました。


脱衣室・浴室・トイレが使いやすく配置され、
脱衣室には洗面化粧台と洗濯機スペースを確保。
洗面化粧台にはLIXIL ピアラを採用しました。

浄化槽を設置したことで、トイレは水洗トイレになりました。
トイレはLIXIL アメージュを採用しました。
汚れが付きにくく、お手入れ簡単な商品をお選びいただきました。

給湯はガス給湯暖房機に変更し、追い炊きが可能に。
冬場や来客時でも、いつでも快適な入浴ができるようになりました。
.jpg)

外観
浄化槽
■使用材料・工事費用・施工期間
【使用材料】
・システムバス:LIXIL リデア
断熱材入りで保温性が高く、冬でも暖かい浴室。
サーモバスS、キレイサーモフロア採用。
・洗面化粧台:LIXIL ピアラ
広くて使いやすいボウルと収納力が魅力。
・トイレ:LIXIL アメージュ
汚れが付きにくく、お手入れ簡単。節水タイプ。
・ガス給湯暖房機:リンナイ RVD-E2405SAW2-1(C)
給湯・追い炊き・浴室暖房に対応。
浴室暖房機:リンナイ RBH-C3301K1
・浄化槽:クボタ KZⅡ-5型 その他
【施工日数】
約40日
【施工金額】
8,775,000円(税込み)
〈下記補助金含む〉
・子育てグリーン住宅支援事業補助金
・先進的窓リノベ2025事業補助金
・浄化槽補助金(神石高原町)
■Before/After




■お客様の声
築100年を超える実家、特に水回りの老朽化と使い勝手の悪さは長年の気がかりでしたが、
快適な空間に改修していただきありがとうございました。
限られたスペースの中でどのように水回り(脱衣室・浴室・トイレ)が配置できるだろうかと悩んでいましたが、
広島ガス住設さんから複数のパターンでプラン図を作成して頂き、
それを元に親族で相談して最適なプランを決めることができました。
リフォーム後、盆や墓参りなどで親族が実家を訪れる機会もありましたが、皆に喜んでもらえて本当に良かったと思います。
今後も生まれ育った実家を兄弟親族とともに大事に守り、皆が気軽に過ごすことのできる場としていきたいです。
この度は本当にありがとうございました。

■担当者より
このたびは大切なご実家の改修工事に加え、新規ガス契約およびガス給湯器への取替を依頼いただき誠にありがとうございました。
長期間の工事となりご不便もあったかと思いますが、ご理解ご協力を賜りましたこと、重ねて御礼申し上げます。
改修後、墓参りなどの機会に安心して親族の方に実家に行ってもらえるようになったとお聞きし、大変嬉しく思っております。
この先も甥っ子さんや親族の皆様がゆっくり快適に滞在して頂ける空間になることを願っております。
今後も住まいのお困りごとがございましたらお声がけください。
引き続きよろしくお願いいたします。
■石油ボイラーからガス給湯器へ交換するメリット
冬でもすぐ暖かい「追い炊き・浴室暖房」
ガス給湯暖房機は追い炊き機能があり、家族が多い日や来客時でもお湯を温め直せます。
浴室暖房を併用することで、冬場の寒さ対策やヒートショック対策にもつながります。
灯油の補充が不要で管理がラク
灯油の購入や補充、保管の手間がなくなり、高齢の方でも安心して使える給湯設備です。
補助金を活用してお得に設備更新
国の住宅省エネキャンペーンや自治体補助金を活用することで、初期費用の負担を抑えたリフォームが可能です。
■神石高原町で水回りリフォームや給湯器の取替をご検討中の方へ
「古い浴室が寒い」「灯油ボイラーの管理が大変」などのお悩みはありませんか?
現地調査・お見積りは無料です。
お住まいに関してお悩みごとがございましたら、
広島ガス住設(株)三和営業所までぜひお気軽にご相談ください。
■神石高原町工事に関するQ&A
Q1.神石高原町でもガス給湯器への切替はできますか?
A.はい、可能です。今回のように新規ガス契約を行い、
石油ボイラーからガス給湯器へ切り替えた事例もございます。
現地調査のうえ最適な方法をご提案します。
Q2.冬場の浴室の寒さ対策はできますか?
A.浴室暖房機付きのガス給湯暖房機を設置することで、冬でも暖かく快適な入浴が可能です。
ヒートショック対策としても有効です。
Q3.補助金は必ず使えますか?
A.工事内容や時期によって利用できる補助金が異なります。
条件確認から申請サポートまで当社で対応可能ですので、お気軽にご相談ください。

LPガス販売・管工事・建築/増改築工事・電気工事・不動産業など、上記下記の販売所を拠点に地域に密着した事業展開をおこなっています。
「お困りごとはありませんか?」を合言葉に、お客様の住まいと暮らしを身近なところでサポートを目指す企業です。
【営業所】
東城本店(庄原市東城町)上下支店(府中市上下町) 福山支店(福山市蔵王町)三和営業所(神石高原町)根雨営業所(鳥取県日野町)ガスセンター(東城町新福代)庄原営業所(庄原市) 庄原ハウジング(庄原市)
【エリア】
広島県/庄原市・三次市・府中市・福山市・神石高原町・尾道市・三原市
岡山県/笠岡市・井原市
鳥取県/米子市・日野町
液化石油ガス設備士、1級電気工事施工管理技士、第一種電気工事士、一級建築士、一級建築施工管理技士、1級土木施工管理技士、給水装置工事主任技術者、下水道排水設備工事責任技術者、宅地建物取引士、(公認)不動産コンサルティングマスター、賃貸不動産経営管理士など、各分野の有資格者が在籍しております。
ガス・電気・水まわり・建築・不動産まで、安心・安全・ワンストップでお任せください。
広島ガス住設株式会社
●東城本店
→庄原市東城町川西856-1
TEL:08477-2-0030
事業所情報はこちら
●根雨営業所
→鳥取県日野郡日野町高尾411-14
TEL:0859-72-0155
事業所情報はこちら
●三和営業所
→神石郡神石高原町小畠2784-1
TEL:0847-85-2021
事業所情報はこちら
●庄原営業所
→庄原市西本町1丁目19-12
TEL:0824-74-6363
事業所情報はこちら
~広島ガス住設㈱サービス提供エリア~
広島県/庄原市・三次市・府中市・福山市・神石高原町・尾道市・三原市
岡山県/笠岡市・井原市
鳥取県/米子市・日野町
※上記以外の地域のお客様もお気軽にご相談ください

▲広島ガス住設(株)LINE公式アカウント
こちらからも友だち追加をすることができます

